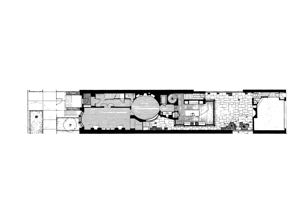
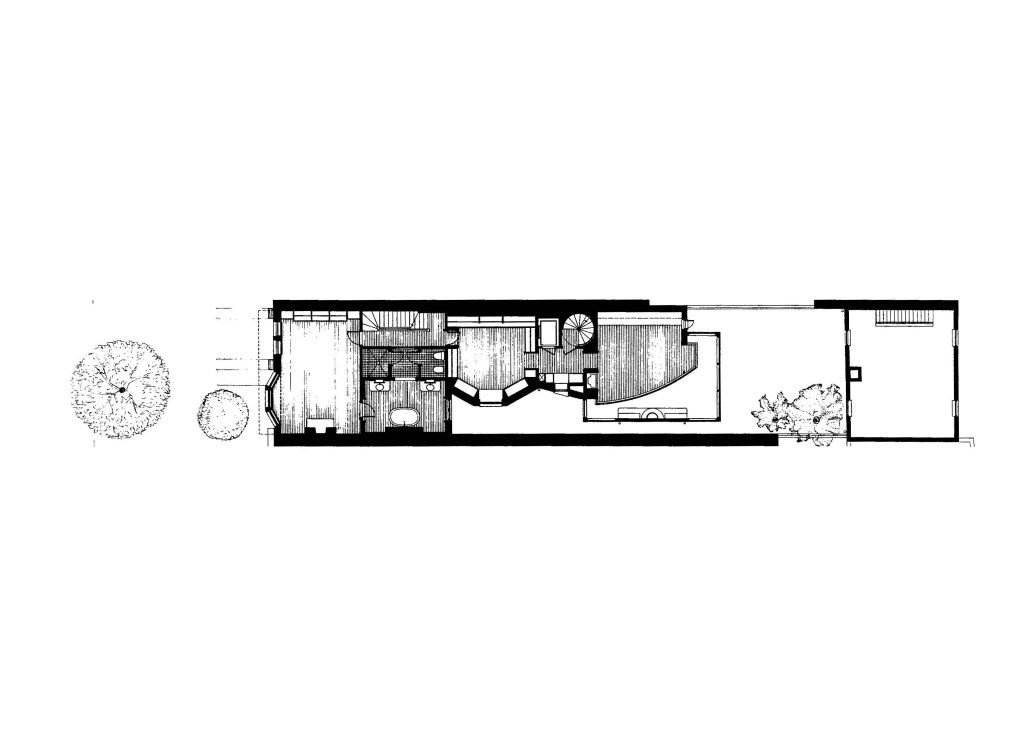
Gold Coast Residence

Chicago, Illinois (1997)
This home had many of the attributes of turn-of-the-century Chicago rowhouses: a beautiful facade and a great street, paired with a warren-like plan and little interior daylight. A hodge-podge of rear additions had cluttered the rear of the house and its courtyard. The goal of the renovation was to open up the plan for more views through the house (front to back), and create more openings on the roof and rear of the house for daylight to come in. The primary addition was a glass box at the rear of the house, letting east light flood into the lower family room, kitchen and upper office. A sunny roof garden and sitting room topped the box.








With Wheeler Kearns Architects. Photos courtesy of Wheeler Kearns Architects.
Indiana Residence

Valparaiso, Indiana (1997)
The clients for this home had spent many years traveling, especially in Japan, and had fallen in love with Japanese courtyard houses. When they found this 10-acre site in Indiana, one of their few requests was that it have a courtyard. This request was easy to fulfill, especially when we started building off the precedent of vernacular farmstead arrangements, clustering buildings to form entry courtyards and ‘kitchen gardens’. Paralleling Japanese simplicity with Shaker minimalism also seemed a natural fit for this site. Especially striking was the diversity of views: rolling meadow bounded by forest, a nearby hillside that glowed with fall foliage, and a distant view that ended at the Indiana dunes, miles away. We tried to capture as much of this as possible, situating the ‘big house’ atop the ridge, with large windows facing north, south and east.










With Wheeler Kearns Architects. Most photos courtesy of Wheeler Kearns Architects.
Boulevard Brewery

Kansas City, Missouri (2005)
Who wouldn’t want to design a brewery? Especially with creative clients, committed to helping revitalize downtown Kansas City. This new brewery, set adjacent to their existing brewery, had a site highly visible from a nearby elevated highway and surrounded by everything from turn-of-the century brick warehouses to 1970’s precast commercial buildings. This design tried to join that conversation. The east facade, facing the busy highway, was developed as a ‘display case’ for the shining brew kettles. The tip (and entry) of the building was sheared away to show an informative cross-section through the brewhouse. The overall aesthetic of the building was that of a no-nonsense concrete warehouse emerging from a traditional brick shell. This was a nod to the surrounding buildings, but was also a way of exposing the layers of the construction, the making of the building. A brewery is, in the end, all about making.
2007 International Illumination Award (IESNA); 2010 Kansas City “Community Treasures” Award













With 360 Architecture. Most photos courtesy of 360 Architecture.
Design Ranch

Kansas City, Missouri (2005)
I’ve been lucky to have quite a lot of creative, open-minded clients, and this no exception. The basic program was for an office for 6-8 graphic designers, but with the added caveat that the building be convertible to a live-work residence, should some future user have that need. These programmatic requests were paired with a very unusual site in one of Kansas City’s oldest urban neighborhoods. To the rear of the lot was a historic residential area that had been undergoing a major revival in the past decade, and now included everything from beautiful turn-of-the century brick rowhouses to sleek new contemporary homes. The front of the lot had a panoramic view of the downtown skyline, thanks to its position on the edge of a bluff.
So, how to take all that into account? It started with an assessment of what the typical historic neighborhood characteristics were: minimal front setback surrounded by low retaining walls, a tall rowhouse proportion, side porches, projected fireplace masses and staircase bay windows, and often, masonry primary structures with wood additions to the rear (containing kitchens and bathrooms). All these ingredients were pushed through an ‘architectural filter’, leaving a simplified, modern version of what might have once been there. The front of the resulting building, then, was pulled open to create a large-scaled two-story conference room, facing the equally large-scale view of downtown high-rises.
2008 International Interior Design Association (IIDA) Gold Award; 2006 Kansas City Economic Development Council Cornerstone Award.
















With 360 Architects. Most photos courtesy of 360 Architects.
Lawrence Residence

Lawrence, Kansas (2005)
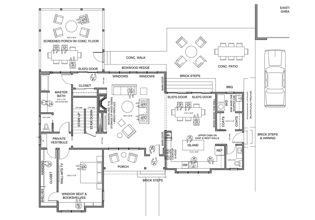
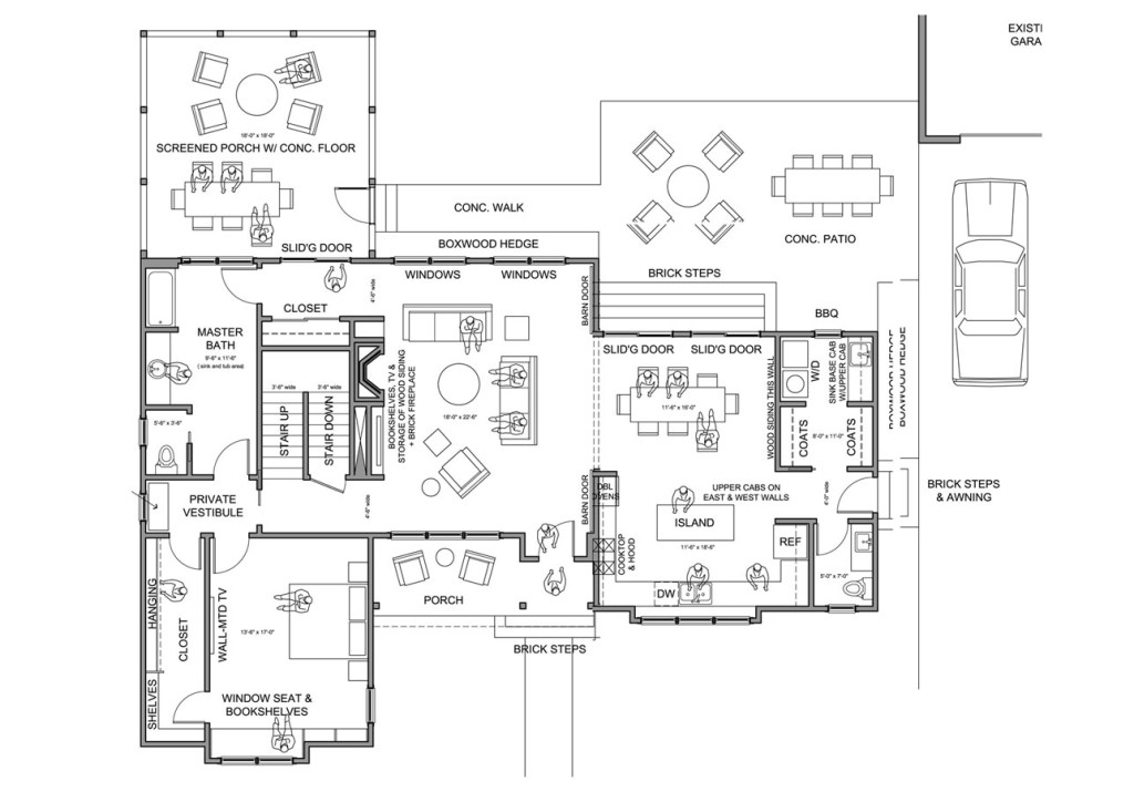
This site for this home had many things in common with the Indiana home above, but in this case it was 80-acres of beautiful rolling farmland, sloping to the south with a view for miles. The primary difference was the existence of a fairly dilapidated stone farmhouse, measuring about 15′ by 30′. It had wonderful character and presence, sitting atop a hill at the end of a long drive. It was easy to imagine how this might have appeared a hundred years ago, alone in the prairie, a landmark in the distance for a weary traveler. Preserving that character was the number one goal for me. Needless to say, to make this a viable home for modern family, an addition that quadrupled the size was necessary. The addition, very simply, took the form of a long, low glass pavilion, hugging the ground and allowing the historic home to remain the tallest point on the horizon. The addition opened and directed itself to the long-distance views and south sun. As an added bonus, we were able to incorporate some matching stone foundation, using stone salvaged from a farm in the client’s family.











Arrow Rock Residence I

Arrow Rock, Missouri (2012)
This weekend residence was for a Kansas City couple who had purchased an empty lot in Arrow Rock, Missouri several years earlier. If you haven’t been to Arrow Rock, it’s a really beautiful little village adjacent a large national park. The entire town is on the historic register, and as such, has a set of design guidelines that require new builds to be designed in a fitting, traditional way. This little house (about 1000sf), although it looks like a Shaker-meets-Queen Anne cottage on the outside, is quite contemporary on the inside. Its centerpiece is a large open entertaining area with a vaulted ceiling and oversize island/dining table.





Interior photos courtesy of client.
Arrow Rock Residence II

Arrow Rock, Missouri (2013)
This weekend residence, again for a Kansas City couple, is right across the street from Arrow Rock House I. It had a more expansive program: three bedrooms and 2.5 baths, totaling about 2700sf. It’s also on a bigger lot that already contains a big horse barn, an existing garage and a historic log cabin! As with Arrow Rock House I, the design had to fit the historic design guidelines of the village. The couple, now retired, are enjoying getting back to nature with their horses and grandchildren.

Rafter E Studio

Kansas City, Missouri (2013)
If you’ve made it this far in the website, you’ve probably figured out that in addition to being an architect, I also make ceramics. This little building, located in a city neighborhood of modest 1920s bungalows, was built in 1905 as the neighborhood grocery store. It probably stopped being a grocery in the 1950s, and had a succession of lives after that: pet store, carpenter shop, church, office. By 2013, when we bought it to use as my pottery studio, it was ready for a major renovation.
We gutted the shell up to the original 11′-0″ beadboard ceilings, took out the rotting wood frame floor and exterior masonite siding, and started fresh. A narrow bar, running along the south side, contained service elements and was clad in wood, with its ends exposed on either end of the building. Large wood-clad sliding doors allowed this area to be open while working, and closed during gallery shows. This allowed the building to function as both a working studio and a retail gallery.
2013 Merit Award for New Construction in a Historic Context / Historic Kansas City Foundation













Bluff Residence

Kansas City, Missouri (2019)
People tend to assume architects look forward to doing their own home, but we were definitely on the fence about it. It’s one of those things that’s equal parts intimidating and exciting. Then we found a pretty special lot, high on a bluff overlooking the Kansas City skyline and big Kansas City sunsets, and decided to pull the trigger.
The house went through so many iterations…budgets and fussing, at least six designs…that I’m not even sure what to say here anymore. Ultimately, it’s a straightforward, budget-conscious plan, suited for how we live, that tries to be responsive to the patterns present in the neighborhood. Simple forms, regular window layouts, porches, chimneys, discreet garages, horizontal siding.
Insertions into existing neighborhoods are often resented because they don’t “fit”, and usually this is blamed on style (code for “modern”). I don’t think it’s style. I think it’s a matter of not following patterns and scales that are present/prevalent in the neighborhood. There is good design, and poor design, with plenty of examples of both, modern and traditional.
And speaking of examples, the house pulls architectural inspiration from any number of sources I should credit, many of which are distinctly modern: the Shakers, Charles Rennie Mackintosh, Le Corbusier, Richard Neutra, Richard Meier, Hugh Newell Jacobsen, Clark and Menefee, John Pawson, Vincent van Duysen, and my own background: midwestern vernacular.
In the end, I think the primary goal was just that it be quiet. No more than it needed to be. A good neighbor, not a statement piece. I think there are enough things yelling for attention in the world, your home doesn’t need to be one of them.




























